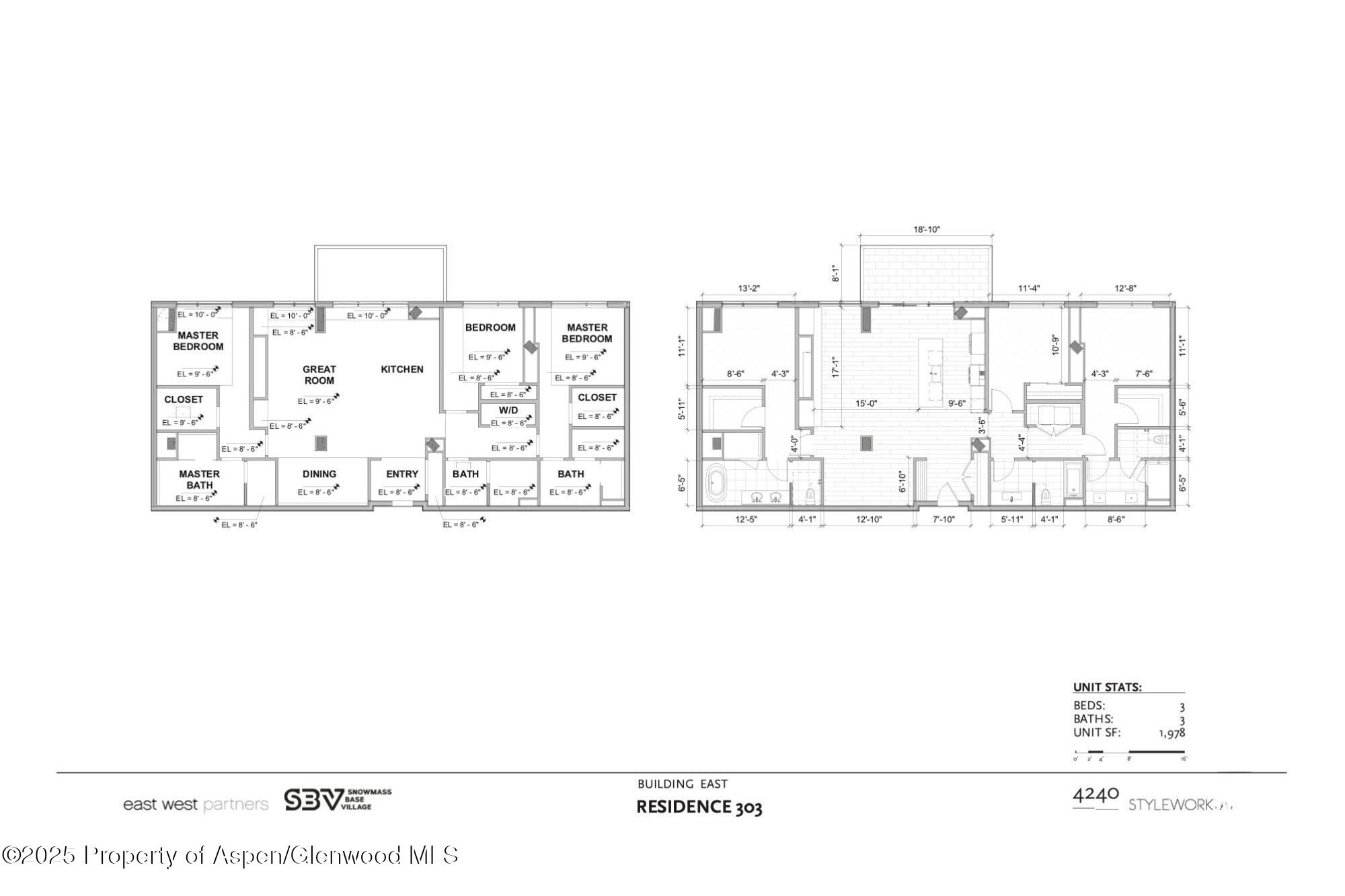
Discover refined mountain living at One Snowmass East with this exceptional 3-bedroom, 3-bathroom residence, an elegant retreat in the heart of Snowmass Base Village. Perfectly positioned just steps from the Elk Camp Gondola, Unit 303 East offers effortless ski-in/ski-out access and an elevated alpine lifestyle year-round. Meticulously designed and furnished with timeless sophistication, this spacious condo features breathtaking mountain views, floor-to-ceiling windows, and a generous outdoor terrace complete with a gas grill perfect for entertaining after a day on the slopes or trails. Inside, you'll find high-end finishes throughout, including a chef's kitchen with Gaggenau appliances, sleek custom cabinetry, a spacious stone island with ample bar seating, a modern steel-clad fireplace in the living room, and oversized walk-in closets. The serene primary suite boasts a luxurious soaking tub and spa-like bath - with radiant heated flooring. The guest suite and bunk room provide flexible space for additional family and friends. A large owner's storage room adds even more practicality and is right outside your door. Residents of One Snowmass East enjoy exclusive access to the rooftop Sky Terrace, showcasing an infinity-edge spa and fire pit with panoramic views of Snowmass Mountain and Mount Daly. The building also features a state-of-the-art 2,500-square-foot fitness center, large private ski lockers with boot heaters, a stylish owner's lounge, TAC Fitness, and available on-site Front Desk Management that provide services to make ownership a Five-Star experience. All of this is surrounded by the vibrant energy of Base Village just steps to the dining, shopping, and year-round fun at The Collective, The Rink, The Crepe Shack, Sundae's Ice Cream, JUS Snowmass, Eye Pieces, and more. Unit 303 East is more than a residence - its mountain living redefined, blending alpine adventure with world class amenities. No owner or rental restrictions make this property ideal as a full time residence, seasonal escape, or incredible investment. This is your opportunity to buy one of the best priced 3 bedroom units at One Snowmass East. Give us a call today to schedule your private tour.

Listing Tools

Property Details of 77 Wood Road, Unit 303

Property Details

Interior Features

Exterior Features

Community

Utilities and Appliances

Map Location

Listed by David Baer of ENGEL & VOLKERS ((970) 925-8400)

Based on information submitted to AGMLS as of November 9, 2025 8:14 AM EST . All data is deemed reliable but is not guaranteed accurate by the MLS. All information should be independently reviewed and verified for accuracy. IDX information is provided exclusively for consumers’ personal, noncommercial use and may not be used for any purpose other than to identify prospective properties consumers may be interested in purchasing.

Hi there! How can we help you?

Contact us using the form below or give us a call.

Send Us A Message:

I agree to receive marketing and customer service calls and text messages from Coldwell Banker Mason Morse. To opt out, you can reply 'stop' at any time or click the unsubscribe link in the emails. Consent is not a condition of purchase. Msg/data rates may apply. Msg frequency varies. Privacy Policy.

Do not fill in this field:

This site is protected by reCAPTCHA and the Google Privacy Policy and Terms of Service apply.