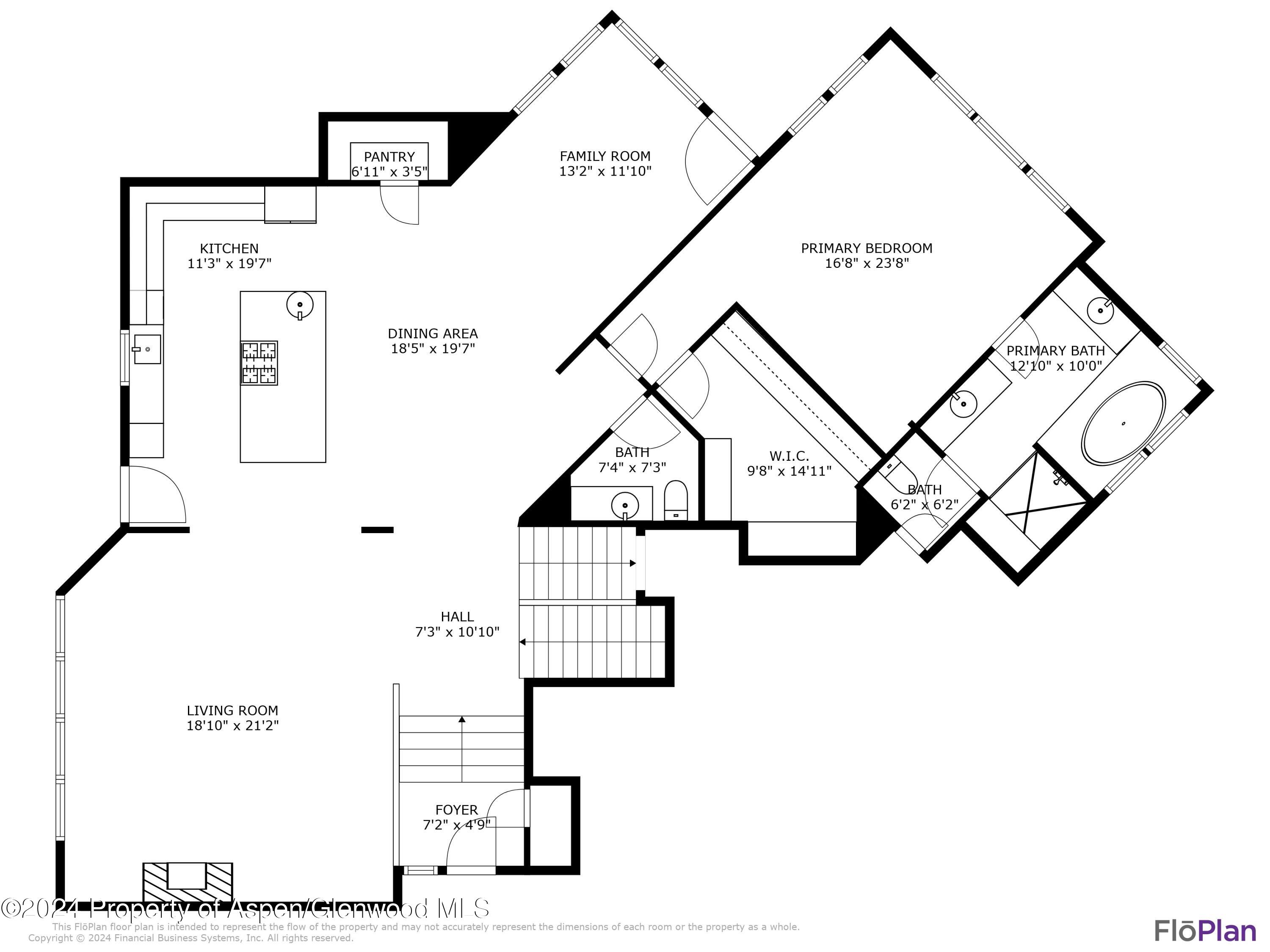
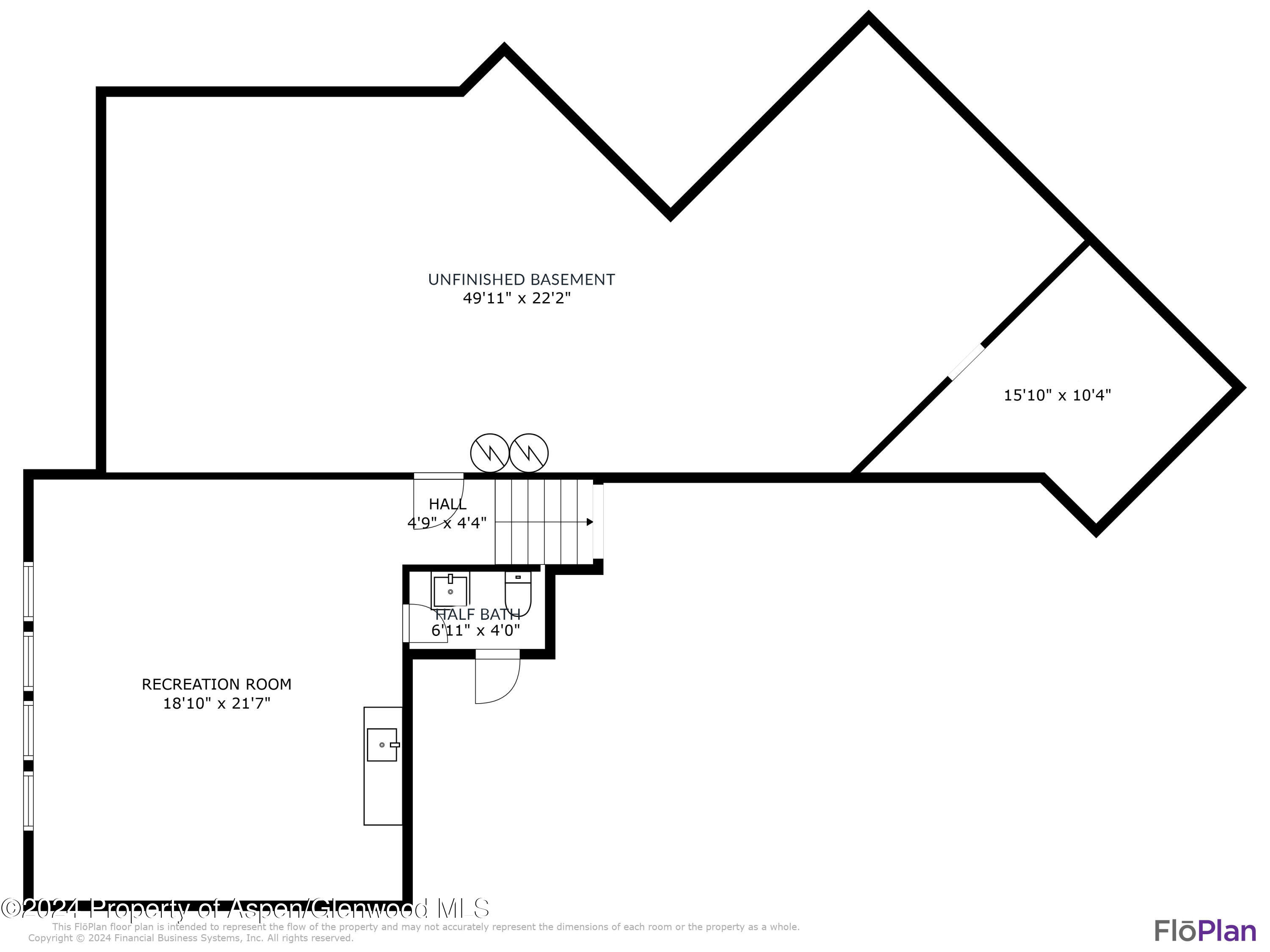
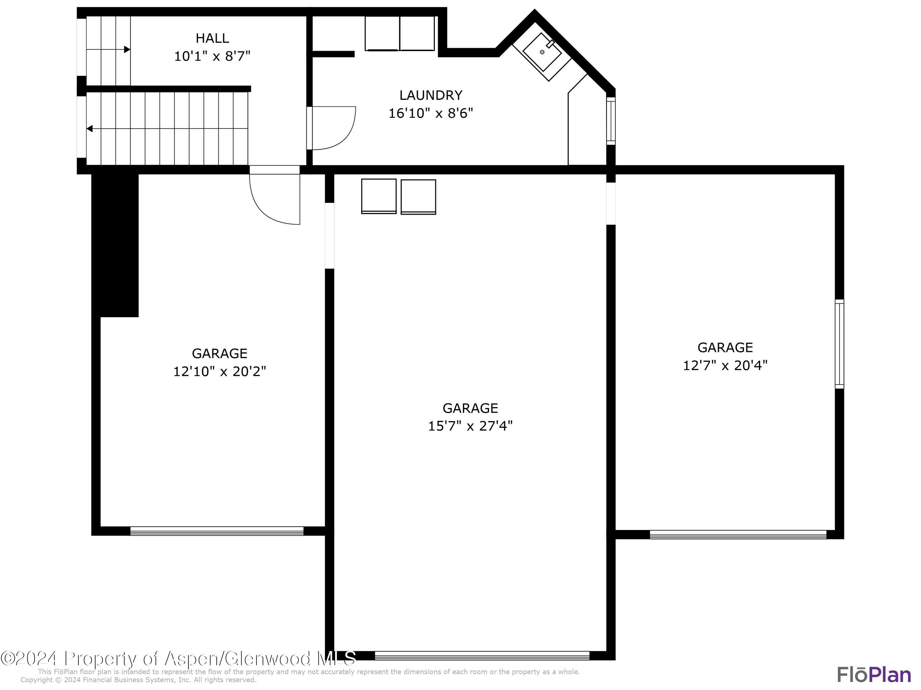
Welcome to a classic legacy home in River Valley Ranch. This 3 level single family home offers the ability to reside mainly on one level with abundant bedrooms and entertaining spaces for guests. Relax outdoors on either of two porches, one off of the kitchen and one going out to the backyard. The spacious fenced-in backyard feels private with mature trees around the perimeter and the scenic 3rd green as the backdrop to the West. There's a cement pad for a hot tub next to the deck (hot tub is negotiable). The mid-level floor includes an open concept kitchen, dining, living room and sitting areas with vaulted ceilings, a powder room and generous primary suite. The large gourmet kitchen features double ovens, a walk-in pantry, granite countertops and plenty of cabinet storage. The upper level includes 3 bedrooms and 2 full bathrooms. The guest ensuite bedroom upstairs also includes a private porch that faces Southeast. The lower level includes walk-in access to the garage, a large laundry room and recreation/billiards room. Mountain traditional finishes include wood paneling on the ceilings, built-in Alder cabinets, custom wood doors and trim throughout, and a cozy gas fireplace in the living room. The heated 3-car garage with walls separating each bay provides the perfect spot for a workshop or luxury car storage. Additional amenities include evaporative cooling, stairwell lighting, a whole-house vacuum system, and plenty of storage. There's a spacious unfinished area in the lower level that would be perfect for a mother-in-law suite or additional bedroom, bathroom and living area (please inquire for proposed building plans). River Valley Ranch residents enjoy private access to the Ranch House amenities which include a year-round lap pool with indoor access, summertime outdoor swimming pool for all ages, fitness center, office, meeting and entertaining spaces, and outdoor tennis courts. The 18-hole golf course along the scenic Crystal River and restaurant, The Handlebar, are open to the public.

Listing Tools

Property Details of 4132 Crystal Bridge Drive

Property Details

Interior Features

Exterior Features

Community

Utilities and Appliances

Map Location

Listed by Sara Kurz of Aspen Snowmass Sotheby's International Realty-Basalt ((970) 927-8080)

Listing Sold by Carbondale

Based on information submitted to AGMLS as of November 15, 2025 6:44 AM EST . All data is deemed reliable but is not guaranteed accurate by the MLS. All information should be independently reviewed and verified for accuracy. IDX information is provided exclusively for consumers’ personal, noncommercial use and may not be used for any purpose other than to identify prospective properties consumers may be interested in purchasing.

Hi there! How can we help you?

Contact us using the form below or give us a call.

Send Us A Message:

I agree to receive marketing and customer service calls and text messages from Coldwell Banker Mason Morse. To opt out, you can reply 'stop' at any time or click the unsubscribe link in the emails. Consent is not a condition of purchase. Msg/data rates may apply. Msg frequency varies. Privacy Policy.

Do not fill in this field:

This site is protected by reCAPTCHA and the Google Privacy Policy and Terms of Service apply.